Часть 2. вилла монтебар (Montebar Villa) в Швейцарии от JMA.
Этот современный минималистский дом построен на небольшой открытой площадке в швейцарских Альпах.
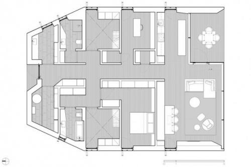
Участок расположен на южном склоне в волшебном тихом месте рядом с лесом и с панорамным видом на горы напротив и деревню внизу. Дом представляет из себя цельный шестигранный объём с шестигранной же крышей. Просторная гостиная открывается стеклянным витражом во всю стену окружающему пейзажу и имеет выход на крытую террасу. Одна спальня находится внизу, ещё две - в мансардной зоне
. Основные конструкции дома деревянные, заводского изготовления - дом был собран на месте из готовых деталей за несколько дней. Большое внимание уделено энергоэффективности - толщина слоя теплоизоляции составляет 22 см (8, 66 дюйма. Наружная отделка из керамогранита выполнена. Интерьер также в минималистской стилистике выполнен.






