Всё об интерьере для дома и квартиры

Лучшие идеи для дизайна интерьера, полезные советы, интересные статьи

Загородный дом в стиле Hitech.

10.07.2021 в 11:29

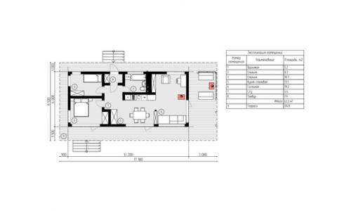
Два варианта планировки и немного интерьера.

Основные характеристики:
Кол - во спален: 2.
Площадь: 61 м 2.
Размеры: 17. 1 м х 8. 5 м.
Этажность: 1.
Технологии: деревянный / каменный.

Загородный дом в стиле Hitech.
В доме есть две спальни, просторная гостиная и зона кабинета. Полноценная ванная комната, в которой можно разместить джакузи. Угловая терраса с зоной отдыха, огороженная перголой.

Загородный дом в стиле Hitech. 01
Загородный дом в стиле Hitech. 02
Загородный дом в стиле Hitech. 03
Загородный дом в стиле Hitech. 04
Загородный дом в стиле Hitech. 05
Загородный дом в стиле Hitech. 06
Загородный дом в стиле Hitech. 07