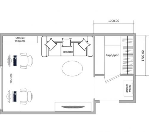
Дано: комната 17, 7 кв. м.
Что требуется: сделать кабинет для двоих с гостиной зоной для отдыха и отдельной гардеробной.
Что получилось можно посмотреть на картинках.
Эскизный проект позволяет сэкономить бюджет, но также сделать грамотную планировку, спланировать освещение и подобрать все необходимое для идеального интерьера
.


