Дом в США был построен в качестве гостевого.
04.02.2021 в 13:29
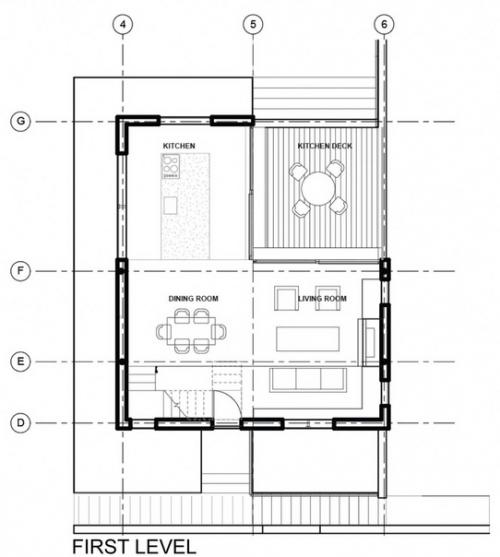
При этом по своим размерам и планировке он вполне подходит под категорию дачных домов для загородного отдыха. У него есть полноценный подвал, открытая общая зона с хорошим функциональным разделением на кухню, столовую и гостиную с выходом на открытую террасу. На втором этаже расположена просторная спальня с ещё одной террасой - балконом.

Не смотря на простой внешний вид, у дома получилась цельная архитектура с очень тёплым и уютным интерьером. Особенно удачно сочетание традиционных и современных материалов.

Минидом@Tinyhouse.








Категории: Интерьер дачного дома, Интерьер для дома, Интерьер загородного дома, Мебель для кухни, Мебель для гостиной, Идеи дизайна спальни, Современный интерьер квартиры