Дом на сложном рельефе в Тюмени.
Дом в Тюмени (House in Tyumen) в России от A61architects и Yydesign.
В связи с тем, что этот дом был задуман как диалог между архитектурой и пейзажем, последний был выбран в качестве отправной точки проектирования.

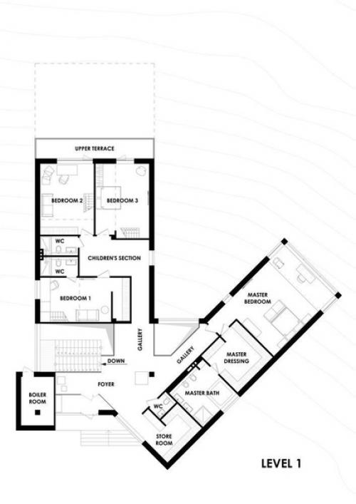
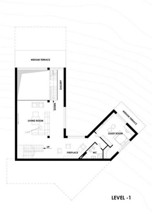
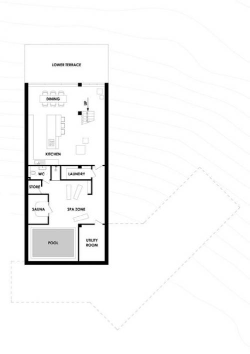
Главный фасад скрывает весь потенциал и масштабы объекта, его основная часть находится под землей. Только в том случае, если остановиться возле входа в дом, он теряет свою масштабность - появляется ощущение небольшого динамичного объёма. Внутри же возникает реальное чувство пространства: двухэтажный зал, многочисленные полупрозрачные отверстия, которые создают общее впечатление о цельной и развитой структуре дома. Внутреннее пространство по двум вытянутым объемам развивается. Основная часть дома выходит вниз по склону в сад и представляет собой хорошо продуманную объемно-планировочную структуру, которая предназначена для обеспечения комфортного и качественного проживания большой семьи. Типичное для севера лесное окружение и близость к природе стали подсказкой для решения фасадов - дом "Завернули" в деревянный брус.

Главные цели дизайна интерьера - подчеркнуть каскадную структуру воздушного пространства внутри дома, придуманного архитекторами, не перегружать интерьер элементами и материалами, а также подчеркнуть тесную связь с природой, объединив всё это в эстетике минимализма.

Название: дом в Тюмени (House in Tyumen).
Расположение: Тюмень, Россия.
Архитектура: A61architects.
Интерьер: Yydesign.
Строительство: 2016 общая площадь: 544 м 2.





