Всё об интерьере для дома и квартиры

Лучшие идеи для дизайна интерьера, полезные советы, интересные статьи

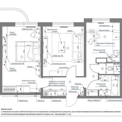
Дизайн - проект двухкомнатной квартиры.

17.01.2021 в 21:58

Просто и красиво. Главное - практично и очень удобно. Особенно понравились мне навесные шкафы в кухне и открытые полки. Спланировано "не как у Всех". А в целом отличный дизайн.

Дизайн: Rerooms_Design
Дизайн - проект двухкомнатной квартиры..

Дизайн - проект двухкомнатной квартиры. 01
Дизайн - проект двухкомнатной квартиры. 02
Дизайн - проект двухкомнатной квартиры. 03
Дизайн - проект двухкомнатной квартиры. 04
Дизайн - проект двухкомнатной квартиры. 05
Дизайн - проект двухкомнатной квартиры. 06
Дизайн - проект двухкомнатной квартиры. 07
Дизайн - проект двухкомнатной квартиры. 08
Дизайн - проект двухкомнатной квартиры. 09