Заказчики сами устанавливали кухню, душевую кабину, даже лестницу сделали сами, в общем, рукастые мужчины в семье тут есть!
На второй этаж попасть не удалось - лестницу уже начали покрывать лаком.

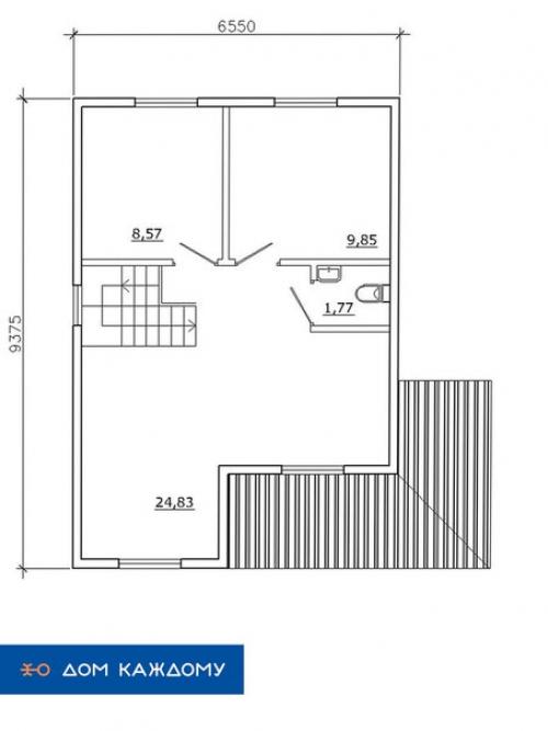
Аккуратная кухня очень удачно вписалась в интерьер, да и вообще, хозяева максимально эффективно использовали имеющееся пространство. Проект на 110 м 2, планировка прилагается.





Читайте далее новости о мебели для кухни http://interior.ru-best.com/mebel/mebel-dlya-kuhni