Дача нового времени: Ecoperch.
Душе современного человека, втиснутого в бетонные городские стены, так хочется хоть иногда отдохнуть от этих каменных тисков. Необычные конструкции в природном стиле как раз призваны дать возможность максимальной релаксации и эстетического наслаждения в период отпуска.

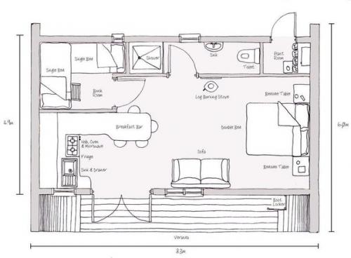
Эта интересная конструкция создана дизайнерами и архитекторами из США и является ничем иным, как обычным летним домиком для семейного проживания. На совсем маленькой площади здесь поместилось довольно много комнат: кухня и столовая, гостиная, спальня с двуспальной кроватью и спальня с двумя односпальными кроватями, и санузел с душевой кабиной.

Общая площадь дома составляет немногим более 24 квадратных метров. Например, площадь санузла всего - 3 м 2, кухни - 7 м 2, спальни для детей - 4 м 2.

Интерьер этого странного здания рассчитан на последующие дополнение от каждой конкретной семьи, то есть он выполнен в как можно более натуральном и простом стиле. В гостиной здесь нашлось место для любования огнем в печке с дивана.

Максимальное количество человек проживающих единовременно в этом доме составляет 6 человек. При условии, что диван покупается раскладной. Здесь вы мы видим очень рациональное использование пространства, которое может быть полезно для каждого, кто планирует построить или модернизировать свою собственную дачу.
Наверху вы можете видеть оригинальную 3D-модель данного здания и оценить практичный подход к данной планировке. В правом верхнем углу еще есть и маленькая кладовка, например, для водонагревателя или электросчетика.