Фасад с жалюзи позволяет создать уединение и полную взаимосвязь интерьера с большим зеленым садом. Новый деревянный дом стоит на месте оригинального садового дома и копирует его очертания. Из них вырастает простое здание с двускатной крышей, покрытой шифером, с дымоходом и деревянными рейками из красного кедра.

Акцент на использование натуральных материалов позволил интегрировать хижину в окружающий ландшафт. Конструкция коттеджа состоит из продольной системы с деревянными панелями на всю стену и четырьмя стойками на противоположной стеклянной стене. Во фронтоне деревянная часть остекленного фасада.
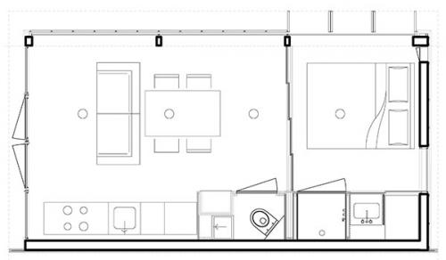
Дом полностью с одной стороны закрыт. С другой стороны, открывается вид на зеленую зону, благодаря подвижным ставням. Лицевая часть используется одновременно как кухня, гостиная и столовая. За дверью вы найдете кухню, камин, туалет, душ, раковину и несколько шкафов. Они доказательством эффективного использования пространства и продуманности всех деталей являются. Modern@in_Woods.



