Гостиная кухня в частном доме. Модные тенденции
- Гостиная кухня в частном доме. Модные тенденции
- Интерьер кухни-гостиной в деревянном доме. Особенности планировки и зонирования
- Кухня гостиная 40 метров в частном доме. Дизайн современной кухни-гостиной 40 кв м с фасадами из стекла и пеналами с техникой
- Дизайн гостинной совмещенной с кухней в частном доме бюджетный вариант. Лучшие фото дизайна кухни-гостиной
Гостиная кухня в частном доме. Модные тенденции
Кухня-гостиная по своей сути — студия. Мода на помещения, где совмещены функции отдыха и рабочей зоны по приготовлению еды, пришла в нашу страну из Америки. Но на российской почве эта тенденция приобрела особенные черты. Если в США почти не готовят пищу в домашних условиях, у нас это каждодневный процесс, что накладывает свой отпечаток на быт в кухне, совмещенной с гостиной комнатой.
Пар и запахи от еды проникают всюду, впитываясь в обивку мягкой мебели, шторы, подушки и прочие вещи на половине гостиной. Компенсировать этот недостаток можно за счет установки мощной вытяжки, но лишь отчасти. Шум от лязганья кастрюль, ножей, шипение сковородки, гудение холодильника и прочей бытовой техники может мешать тем, кто занят своими делами в гостиной.
Другая проблема – кухня и столовая является источником мусора, который неизбежно появляется во время приготовления пищи, обедов и ужинов, проходящих в кухне-гостиной. Чтобы крошки, очистки и прочие «побочные составляющие пищевой жизни» не растаскивались по всей комнате, уборку приходится делать очень часто.
Тем не менее у комнаты со столовой и кухней имеются и свои плюсы.
- Площадь гостиной и кухни зрительно кажется больше при отсутствии стены между ними. Это особенно наглядно, если квадратура помещения невелика.
- Кухня, «не запертая в четырех стенах», позволяет спокойно разместить в удобных местах всю необходимую технику и мебель.
- Объединенное помещение позволяет принимать гостей с большим удобством. Хозяйке легче уследить за ребятишками, когда во время хозяйственных дел она может наблюдать за отпрысками, играющими в комнате у нее на глазах. Также у нее остается возможность общаться со взрослыми родственниками, не отрываясь от работы.
- Большая комната позволяет отдать достаточно места для обеденной зоны, в которой с удобством могут собираться все члены семьи.
- Кухня-гостиная выглядит модно. Дизайн в частном доме помогает сделать ее очень привлекательной и удобной в стиле, соответствующем тому, из какого материала создано все здание, например, из дерева, кирпича и так далее.
Организация кухни-гостиной уместна как в загородном доме скромных размеров, так и в огромном, где важно не затеряться в свободном пространстве.
Интерьер кухни-гостиной в деревянном доме. Особенности планировки и зонирования
Облицовка из «живого материала» имеет свои особенности. На стенах несколько лет может выступать живица, древесина может немного искривляться на конечном этапе досушивания или даже трескаться. Природные свойства сосны, как строительного и отделочного материала, желательно обыграть, не стараясь завуалировать.
Совет. Если на видном месте образовался специфический «дефект», оставьте его, как есть, в этом своя изюминка. Лучше займитесь функциональными зонами.
1. | Плита, печь, очаг | Продумать теплоизоляцию, чтобы стены от нагревания не воспламенились, важна вытяжка, если русская печь – источник тепла, должна быть выложена по всем правилам, во избежание дыма |
2. | Место разделывания продуктов | Расположить между плитой и мойкой, стена (фартук кухни) под облицовкой моющимися материалами, рядом закрытая дверца под очистки |
3. | Мойка | Максимально удобная (широкая, неглубокая, не рассеивает брызги от воды, не шумит), рядом рабочая плоскость и место для сушки посуды |
4. | Места для хранения продуктов | Холодильник, шкафы для круп и сыпучих продуктов, места для минимального запаса овощей, все в рабочей зоне |
В таблице указано, как располагать ключевые точки. Дизайн кухни в деревянном доме может варьироваться, в зависимости от того, как выставлены комплекты – корпусная мебель, обеденный стол и оборудование.

Дерево имеет свои особенности, поэтому их нужно учитывать при планировке кухни

Если придерживаться общих правил, то в конечном итоге все получится красиво и удобно
Наиболее удобной считается встроенная мебель, но это возможно после многолетней усадки. Готовые комплекты можно расположить по-разному, в зависимости от количества стационарных единиц:
- линейная расстановка;
- угловая;
- П-образная;
- параллельная;
- островная.
Оснащение и декор должны подчеркивать функциональность каждой зоны и самой комнаты. Изолированная кухня, совмещенная со столовой, гостиной или застекленной верандой должна обустраиваться по-своему. Иногда ограничиваются небольшим окошком в стене, чтобы передавать приготовленную пищу, или отгородиться барной стойкой.
Для визуального зонирования нередко используют градацию уровней – излюбленный прием многих дизайнеров. Небольшие подиум, ступеньки, настил или подступ – все это разграничивает место для приготовления пищи и отдыха.
В современных проектах кухня со столовой и гостиной занимают общее помещение на первом этаже дома. Отсюда ведет деревянная лестница наверх, где обычно обустраивают спальни.



Кухня гостиная 40 метров в частном доме. Дизайн современной кухни-гостиной 40 кв м с фасадами из стекла и пеналами с техникой
- Цена гарнитура: 3000$
- Площадь: —
- Планировка: Угловая
- Цвет мебели: Под дерево
- Фасады: Стекло
- Стиль: Современный
- Объединение: С гостиной
- Пол: Плитка
- Фартук: Плитка
- Потолок: —
Ваш репост изменит интернет :)
Рассказ Игоря, Надежды из Минска:

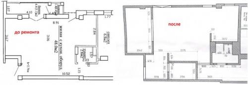
И вот — мы счастливые обладатели собственного жилья! Хорошо, что квартиру купили почти без отделки. От прежних владельцев остался линолеум, который даже не был приклеен, на бетонных стенах красовались бумажные обои и яркие акценты в интерьере — чугунные радиаторы кораллового цвета.
До ремонта
Сразу твердо знали, чего хотим от новой квартиры и кухни в частности, поэтому уже можно сказать с порога приступили к ремонту.

Произвели демонтаж всей отделки — самостоятельно, в кратчайшие сроки и с минимальными нервными потерями.

Монтаж перегородок и гипсокартонных ниш на потолке, выравнивание потолка, укладка плитки — дело рук строителей-отделочников.
Чугунные радиаторы кораллового цвета на белые стальные заменил сантехник.
Все остальные работы с удовольствием и энтузиазмом проводили самостоятельно.
Очень хотелось сделать яркие и одновременно нежные акценты. Одним из них стал кухонный фартук — его. В гостиной повесили занавески в тон одной из полосок на фартуке.

Как вам такой интерьер? Современная кухня 18 кв м с островом и подсветкой
На пол в рабочей зоне уложили плитку «Керамин», в гостиной и во всей квартире — ламинат EGGER с четырехсторонней фаской. Между плиткой и ламинатом вместо накладных порожков сделали полосу из белой мозаики в одной плоскости с напольными покрытиями.
Так как кухня совмещена с гостиной, необходимо было достаточно внимания уделить вентиляции, чтобы ароматы от котлет не разгуливали по всей квартире, а быстренько улетучивались куда следует. Для этого установили достаточно мощную по заверению продавца, вытяжку, а в гипсокартонной потолочной нише в правом углу вмонтировали принудительную вентиляцию.
Гарнитур изготовил индивидуальный предприниматель по нашим эскизам. Материалы фасадов — белое стекло и ламинированная ДСП, фурнитура — BLUM. Уже в процессе эксплуатации выяснилось, что стеклянные фасады гораздо практичнее ламинированных: на них не видны пятна, очень легко удаляется пыль и грязь даже без моющих средств. Просто находка для хозяйки, которая не получает большого удовольствия от уборки!

Вся бытовая техника — встраиваемая, фирмы BOSCH. Удовлетворяет всем нашим требованиям. В начале только огорчил. Как-то заранее не подумали о том, что встраиваемые холодильники менее вместительны. Но ничего, привыкли. Стали есть меньше!

Смеситель — китайского производства Gappo. Но очень даже порадовал: плавный ход ручки, легко отмываются известковые пятна, есть функция «дождик». Его даже полуторагодовалая дочка оценила. В восторге были все, когда она принимала душ прямо в раковине!

Справа от раковины получился очень удобный, скрытый от посторонних глаз уголок. Можно поставить все кухонные предметы первой необходимости, и их не будет видно. А еще этот угол просто незаменим при наведении супер-быстрой уборки. Если гости на пороге, а хозяйка у плиты, вокруг грязная посуда, быстренько убираем все лишнее в уголок от посторонних глаз и, вуаля — порядок!
Левый угол столешницы временно занимает домашнее растение, но оно с радостью уступит это место кофе-машине, которая, надеемся, в ближайшее время появится в нашей семье.

Место для обеденной зоны отвели в гостиной. Стену возле стола оформили небольшими деревянными брусочками разного размера, которые с помощью столярного клея закрепили на лист фанеры, заранее прикрученный к стене. Работа повышенной сложности, скажу я вам! Нарезка лобзиком брусочков из деревянных реек, обработка каждого брусочка наждачной бумагой и приклеивание на стену заняли два месяца. Трудилась вся семья, включая бабушек! Такая вот семейная стенка получилась!
Стол делали на заказ. Он из массива сосны, шпонирован дубом. Стулья — от польского производителя Signal. Вот только накладка вышла: вместо четырех стульев привезли три. В ближайшее время, по заверению продавца, недостающий стул довезут.

Освещение организовали так, чтобы можно было отдельно включать свет в обеденной зоне и рабочей. Очень удобной оказалась. Она не только справляется со своей основной задачей, но и еще дает приятный, нежный свет вечерней гостиной комнате во время просмотра телевизора или позднего чаепития.
Теперь о расходах (в долларах):
Работа отделочников и сантехника — 400.Радиаторы (кухня, гостиная) — 200.Плитка на фартук (Испания) — 300.Плитка на пол («Керамин») — 50.Смеситель — 120.Раковина — 80.Мебель — 3 тысячи.Стол — 400.Стулья — 300.Рольшторы (кухня и два окна в гостиной) — 170.Занавески в гостиной (ткань и пошив) — 240.Техника (варочная панель, духовой шкаф, холодильник, посудомоечная машина, вытяжка) — 2 тысячи 100 (покупали в Москве).Разные мелочи (потолочные светильники, клей плиточный, краска, трубы вентиляционные и прочее) — 300.
Итого: 7 тысяч 660 долларов.
Дизайн гостинной совмещенной с кухней в частном доме бюджетный вариант. Лучшие фото дизайна кухни-гостиной
Давайте сразу начнем с наиболее стильных примеров:
Заметили, что это единое пространство без искусственного разделения?
Во-первых, вся кухня-гостиная выдержана в едином стиле и цветовой гамме. Никакого «визуального зонирования» нет и быть не должно. Цветовая гамма нейтральная, т.к. сочетание цветов в открытом пространстве сложнее и при использовании ярких оттенков появляется риск.
Во-вторых, все кроме 1 кухни до потолка, в них много закрытых мест хранения, а стиль современный и с нотками минимализма. Беспорядок и лишний хлам в кухне совмещенной с гостиной мгновенно уничтожает весь дизайн.
Фото сразу 2-ух ошибок : кухня не до потолка и там скопился хлам, ступенька на потолке где она нафиг не нужна. Опустили бы потолок в зоне шкафов — было бы другое дело.

А вот освещение должно быть раздельным и выключатели важно детально продумать заранее. И да, интерьер кухни-гостиной критично зависит от грамотного света.
Считаем контуры света:
- Раздельный основной верхний свет в зоне кухне и гостиной.
- Общее декоративное освещение включающее весь скрытый фоновый свет и подсветку фартука , светодиодные ленты под барной стойкой.
- Свет над обеденной зоной и, т.к. она обычно в центре комнаты, светильники лучше выбрать стильные броские дизайнерские.
- Торшер возле дивана.
Это минимум. Светодиодная лента под стрелкой должна включаться с того же выключателя, что и фартук.



Про первые 2 пункта:
Яркий верхний свет обычно используют только во время готовки либо уборки, в остальное время используется функциональный и фоновый. Вешать на 1 выключатель верхний свет сразу над кухней и гостиной — ошибка т.к. он почти никогда не нужен там одновременно.
А вот фоновый свет нужен сразу везде и он должен быть на 1 кнопке расположенной на входе в комнату (можно дублировать проходным выключателем возле дивана).
А как делают обычно: под верхними шкафами подсветку делают кухонщики и включается она на кнопку там же, остальное ставят отделочники и включается тоже по месту. Но вы ведь не хотите находиться в зоне кухни, когда гостиная полностью во тьме, и наоборот. Бегать из 1 конца комнаты в другой 2 раза чтобы включить и выключить тоже. Поэтому:
Не вздумайте делать включение светодиодных лент на самом фартуке. Выключатель делать где и все остальные — на входе в кухню.
Это все закладывается в самом начале ремонта при разводке электрики, поэтому в материале про проект кухни я писал, что проектирование не только про мебель, и какую именно часть надо делать самостоятельно.