Дом на берегу атлантического океана от Hammer Architects.
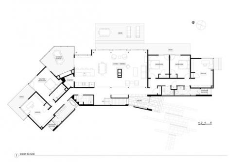
Просторная резиденция Long Dune от архитектурной фирмы Hammer Architects расположена в городе труро штата Массачусетс. Построенная на побережье атлантического океана, она имеет также замечательный вид на реку и пруд с пресной водой. Сторона дома, на которой расположен вход, покрыта прочным и создающим хорошую изоляцию слоем дерева. Здесь разместились ванная, открытые душевые и прачечная с узкими окнами
. Пройдя внутрь через высокую стеклянную дверь, попадаешь в гостиную и столовую, расположенные в центре дома. Эти комнаты имеют прекрасный вид на океан через панорамные окна и большие раздвижные двери, выходящие на крыльцо. В одном крыле разместились комнаты для гостей, а в противоположном, развёрнутом в плане на 45 градусов, находится большая главная спальня. Интерьер дома выполнен в сдержанных тонах с активным использованием дерева и других натуральных материалов, которые прекрасно сочетаются и дополняют естественные пейзажи окружающей природы.









Больше информационных статей об интерьере для дома http://interior.ru-best.com/interer-dlya-doma/interer-dlya-doma